Designed as a sanctuary that celebrates light, local materials, and tactility, Land Collab Studio operates at the vital intersection of Architecture, Interior Design, Construction Management, and Real Estate. Envisioned as a symbiotic space that facilitates a cross-pollination of ideas, Land Collab Studio is a physical manifesto for intentional collaboration.
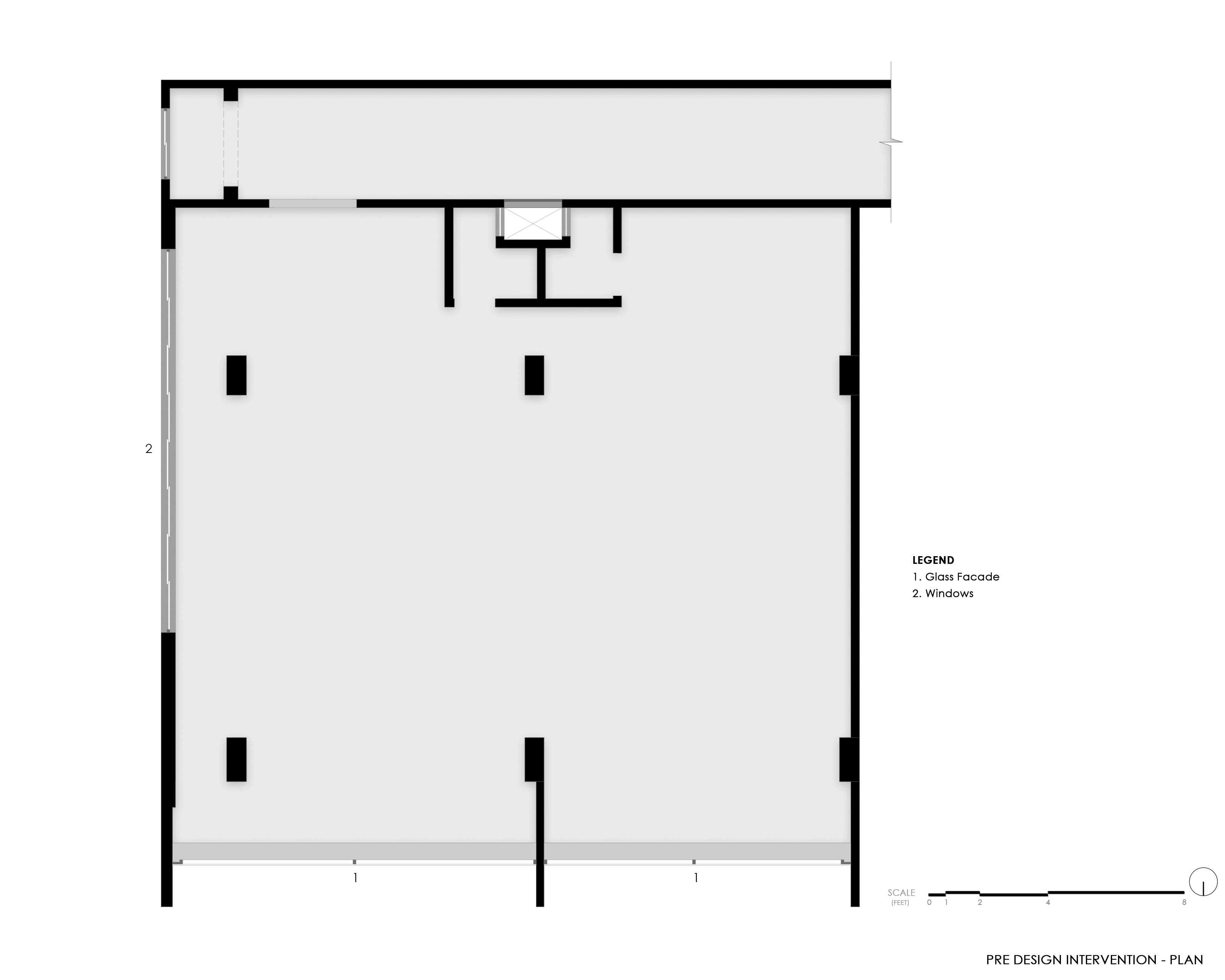
Architects Habitat Collaborative derived the logic of the layout from the geographic orientation of the office space and devised a design that foregrounds natural daylight, shaping a highly functional and comfortable office environment. The office comprises of two primary zones – studio workspace and meeting area. The open plan configuration of the studio workspace is flanked by a discussion table to allow for cross-functional collaboration. The reception area functions like a living room, helping break the formality of an office environment. The intricately detailed entrance door employs Frank Lloyd Wright’s principle of “compression and release” to serve the dual purpose of a threshold as well as a transitioning element.
Drawing on the Indian tradition of using architectural geometry and patterns to address the human quest for meaning, we utilized the flooring as a canvas for celestial metaphors, reflecting the belief that the spaces we inhabit both define and shape us. We imbibed the idea of Navagraha in the flooring geometries with team workspace placed and functioning as the Sun. Habitat Collaborative’s design ethos finds bold expression in the entrance wall mural, where fundamental shapes and primary hues translate their philosophy into a tactile experience.
Designed for maximum versatility, the meeting zone can effortlessly transition from a singular expansive space to two meeting hubs. Complementing this flexibility is an Indian diwan, which anchors a secondary lounge area for informal, living-room-style dialogue.
At its core, the project is a masterclass in ‘experiential sustainability.’ Rejecting the clinical feel of modern offices, the design celebrates a heightened sense of tactility by showcasing materials in their raw, natural glory. From the intricate textures of reclaimed wood bespoke furniture to the unexpected delight of retro brass switches, even the most mundane interactions are elevated into sensory experiences. This commitment to detail extends to the lighting fixtures—handcrafted from granite quarry waste and wire mesh—and a biophilic layout that uses indoor greenery to regulate the microclimate and provide a visual sanctuary. The result is more than an office; it is a fertile incubator designed for creative collaboration.
Read More
LandCollab Studio
Office Design, Interior Design, Furniture Design, Product Design, Architecture Studio, Collaborative Space, Biophilic Design
Vadodara, Gujarat, India
1593 Sq. Ft.
October 2019
Bhavik Thakkar
Vipul Thakkar
Oriental Electricals (Electrical Consultant)
Priyanka Thakar
Fatehchand Saini (Flooring), Paras Suthar (Carpentry & Furniture), Dwit Electricals (Electrical), Rameshwar Décor (Paint & Polishing), Advantech (HVAC), Rangit Parmar (Plumbing)
Fabien Charuau