g

Gravida proin loreto of Lorem Ipsum. Proin qual de suis erestopius summ.

Recent Posts

    Sorry, no posts matched your criteria.

Error: Contact form not found.

Follow Us:
Back to top

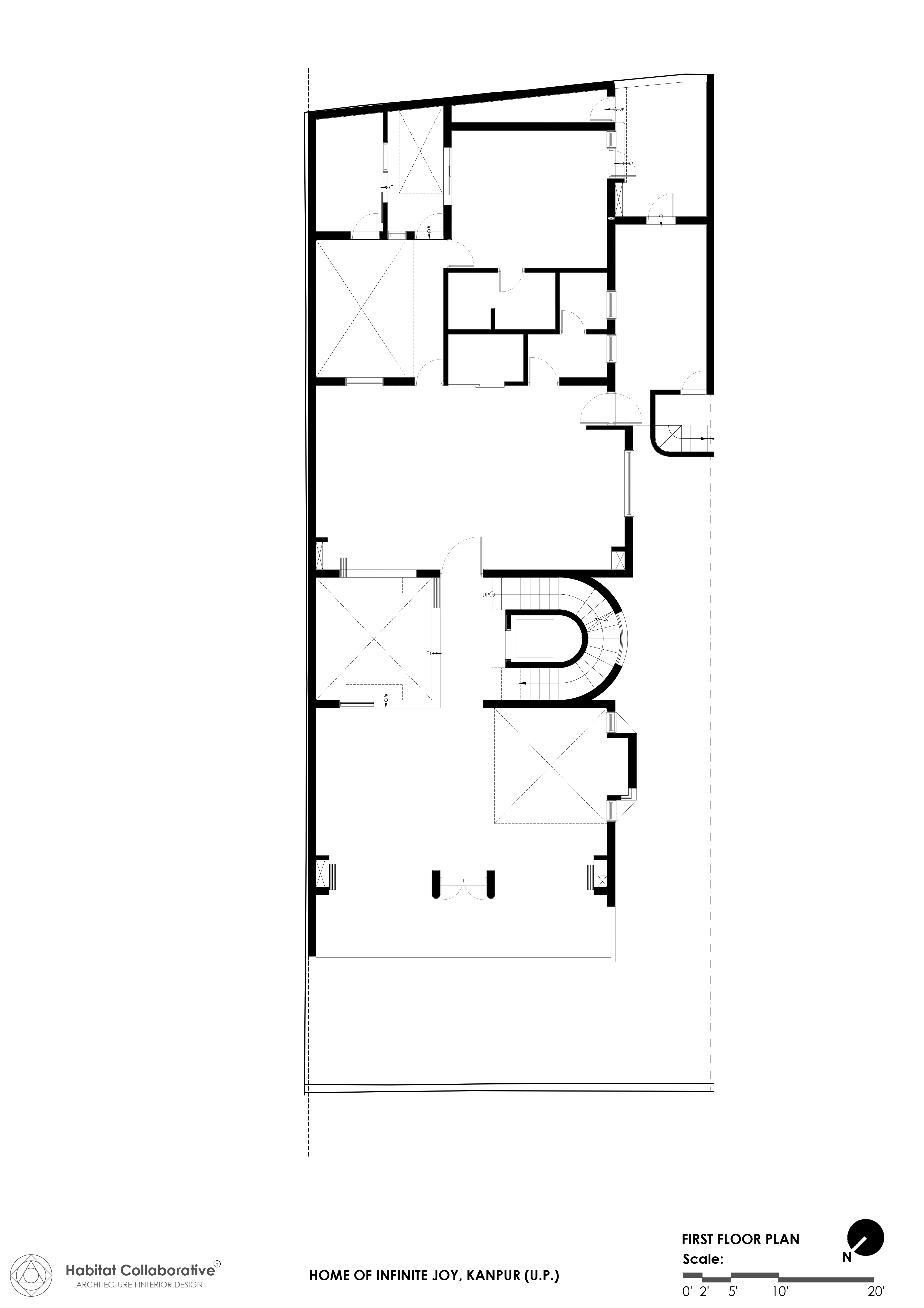
Home of Infinite Joy, Kanpur, U.P

  /    /  Home of Infinite Joy, Kanpur, U.P
×
Scroll to zoom  ·  Drag to pan
Floor Plan